HAEMA Medizinisches Labor Berlin (Innenausbau Labor + Bürogebäude)

Für eine Firma mit Sitz in Leipzig / Berlin wurde die Errichtung einer Betriebsstätte in Berlin-Falkenberg/Mahrzahn geplant (Bauantrag und Ausführungsplanung).
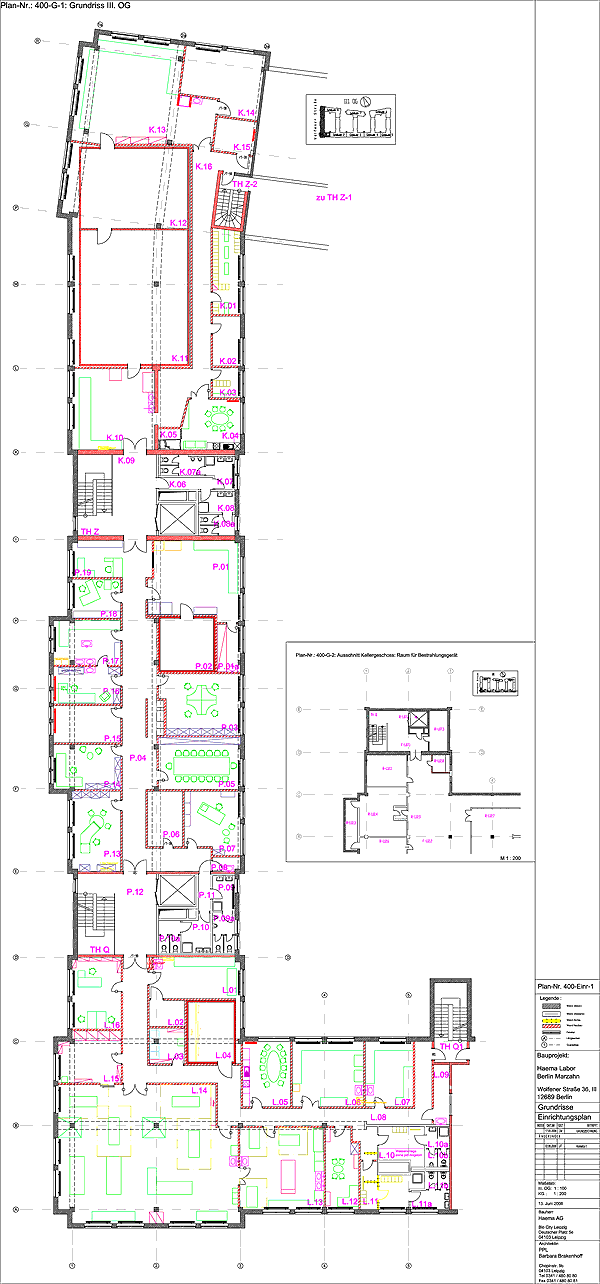
Im 3. Obergeschoss des bereits bestehenden Gebäudes entstehen das Zentrallabor, die zentrale Plasmaverarbeitung und der zentrale Vertrieb von Blutprodukten an Krankenhäuser und Arztpraxen vorrangig in Berlin und Umgebung mit ca. 25 Mitarbeitern sowie 14 Fahrern im Drei-Schichtsystem.
Die Einrichtung ist in folgende Funktionsbereiche unterteilt:

- Zentrallabor mit den Abteilungen Infektionsserologie, Blutgruppenserologie und Molekularbiologie
- Plasmaverarbeitung mit Lagerung in Tiefkühlzellen
- Expedition mit Lagerung und Vertrieb von Fertigarzneimitteln (Erythrozytenkonzentrate, Thrombozytenkonzentrate,
  Gefrorenes Frischplasma)
- Fuhrpark
- Praxis für Untervermietung ohne Patientenzulauf

Weiterhin befinden sich im Mietobjekt Büros für die leitenden Mitarbeiter und Assistenten, Aufenthaltsräume, ein Besprechungsraum, drei Technikräume für Telefonanlage und Verbindung zum firmeninternen VPN, ein Müllraum zur kurzfristigen Zwischenlagerung des täglich anfallenden Abfalls sowie ausreichend Sozialräume (Umkleide- und Sanitärräume, zwei Aufenthaltsräume).
Fertigstellung 2008

 



    © PPL - Barbara Brakenhoff 2013